【詳細說明】
非防爆雙向拉線開關SYLHS--Y-G說明
非防爆雙向拉線開關SYLHS--Y-G生產【卓信電氣}
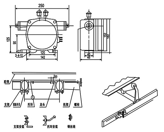
安裝圖
,雙向拉繩開關主要應用在冶金、電力、煤巖、礦山及化工等行業的輸送系統中,是輸送機自動化控制不可缺少的傳感元件,本產品是一種膠帶運輸機現場緊急事故停機的保護裝置。本產品選用鋁錠合金壓鑄,雙向拉繩開關YF-BLKT-II采用國際領先的不銹鋼雙軸承傳動結構避免了開關動作時傳動軸直接摩擦殼體或軸套,造成間隙增大,出現密封不嚴或者卡死的情況,大幅延長雙向拉繩開關使用壽命;殼體表面精工烤漆,不易脫落無異味;傳動軸采用不銹鋼材質強度高,雙向拉繩開關表面光滑;操作桿精鑄成型,避免焊接,內置銅質襯套,整體光潔強度高等等。BLKT-II雙向拉繩開關具有壽命長、靈活實用、安全可靠、檢修方便等特點。當維修人員沒有撤離或尚存在其它異常情況時,只要將拉繩開關鎖定在停機位置,就不用擔心膠帶機被誤啟動,維修人員的安全也就有了保障。卓信電氣是一家主要生產輸送設備全套產品的生產廠家,主營雙向拉繩開關,兩級跑偏開關,打滑開關,溜槽堵塞開關,縱向撕裂開關、料流檢測器、傾斜開關,井筒開關,氣缸磁性開關,防爆磁性開關、接近開關,光電開關。,并采用進口行程開關。
具有強度高,雙向拉繩開關產品出廠時開關觸點數量為一開一閉,如需兩常開、兩常閉,請定貨時注明; 安裝支架,塑鋼絲繩、卡頭、托環等附件用戶可向我公司成套訂購,雙向拉繩開關主要應用在冶金、電力、煤巖、礦山及化工等行業的輸送系統中,雙向拉繩開關是輸送機自動化控制不可缺少的傳感元件,本產品是一種膠帶運輸機現場緊急事故停機的保護裝置。本產品選用優質鋁錠合金精密壓鑄,并采用進口行程開關。雙向拉繩開關具有強度高,重量輕,密封性好,產品使用壽命長等優點。,重量輕,密封性好,雙向拉繩開關動作可靠、性能穩定、頻率響應快、使用壽命長、抗干憂能力強、防水、防震、耐腐蝕等特點。廣泛應用于機械、礦山、紡織、印刷、化工、冶金、輕工、閥門、電力、保安、鐵路、航天等各個行業。并具有常規的產品現貨,本產品Z、S型采用移動凸輪結構,當拉動任意一側拉繩時,便驅動凸輪,使開關動作轉換發出停機信號,1型采用自動復位,2型采用手動復位。雙向拉繩開關注意事項:1、接線聯接可靠,絕緣密封。2、拉繩開關安裝完畢后,兩側拉繩松緊適宜,撓度小,拉拉繩后,開關能可靠復位。,產品使用壽命長等優點型號 觸頭容量 觸點數量 動作力 工作行程 極限行程 防護等級HFKLT2-Z ≤380V≤3A 兩開兩閉 12&plun;2KG 15&plun;2mm 20&plun;2mm IP55HFKLT2-S ≤380V≤3A 一開一閉兩開兩閉 10&plun;2KG 30mm 60mm IP55系列
雙向拉繩開關用途
拉繩開關廣泛用于鋼鐵、水泥、電廠、礦山等具有帶式輸送機的廠礦,該產品安裝在膠帶輸送機兩側,是用于膠帶輸送機緊急事故停機的一種保護開關,在開關操作距離內任何一點拉動鋼絲繩,切斷運行電路使全線停機,實現對膠帶機及人身的保護。
工作原理
當膠帶運輸現場發生緊急事故時,拉動系在吊耳上的鋼絲繩,是機內的滑塊與開關作用,發出停機信號。結構特性 II型帶自鎖保護,在事故排除后提上限拉桿方能復位;開關采用進口的行程開關,使用使命長;密封性好,具有防塵、防震、防腐等優點;機殼采用鑄鋁鑄造,重量輕、硬度強。技術指標動作角度:15⪚ 極限角度:60⪚觸點數量:1個常開;1個常閉
動作力:10kg觸點容量:AC ∕380V
防護等級:IP55可靠性:>106次 環境溫度:-30℃﹣+60℃相對濕度:不大于85
產品圖紙如下圖:

兩級跑偏開關
兩級跑偏開關工作原理
當運行中的膠帶發生跑偏現象時,膠帶邊緣帶動立棍旋轉并擠壓使之傾斜,若立棍傾斜角度大于動作角度時,開關發出一組開關信號,如立棍繼續傾斜大于二級動作角度時則輸出另一組開關信號。兩組開關信號可分別用于告警或停機,膠帶機復位正常運行后,立棍自動復位。結構特性 采用鋁合金壓鑄殼體,拉繩開關又叫做緊急停機開關,一般在一些企業里面在使用,不過現在有的農村也還在使用這種雙向拉繩開關,雙向拉繩開關是一種開關型的傳感器,一般是用于皮帶輸送機,包裝生產線,起重機,挖掘機以及水平給料機。雙向拉繩開關屬于一種現場緊急事故停機的一種保護裝置,當有緊急事故發生的時候,人們在現場沿線任意的地方就可以拉動拉繩開關,拉動拉繩的時候就可以發出停機的信號,從而使的機器停止運作,達到保護人身安全的作用,這種開關雖然現在是多數用于企業,不過有的家庭仍然在使用。今天我們就來了解一下拉繩開關的結構和安裝的方法吧。,強度高,重量輕,開關采用進口的行程開關,觸點容量大、動作靈敏,使用壽命長。密封性好,具有防塵、防震、防防腐等優點,外殼防護等級達IP65,可在惡劣的環境中長期工作。
環境溫度:-30℃~+50℃;
相對溫度:不大于85
型號 動作角度 極限角度 觸點數量 觸點容量 防護等級 復位方式 可靠性 重量(kg) 二級 常開 常閉 HRPK-12-30 12⪚ 30⪚ 70⪚ 2 2 AC380V IP65 自動復位 >106次 3.5HRPK-10-45 10⪚ 45⪚ 70⪚ HRPK-20-35 20⪚ 35⪚ 70⪚
非防爆跑偏開關T-PK、XT-SH、XT-SJ、XT-SL、
非防爆兩級跑偏開關YHPK-I、YHPK-II、YHFPK-I、
兩級跑偏開關YHFPK-II、YHPK-I、YHPK-II、
跑偏開關PX--34KX
防爆雙向拉線開關BKL2-II
非防爆兩級跑偏開關SYLHP--I-F,α=35⪚
防爆兩級跑偏開關BKP2-12-30 α=35⪚
非防爆雙向料流B=1400
防爆單向料流B=1200
非防爆單向料流B=1400
非防爆速度檢測儀SYLH-F2-AC-L
防爆速度檢測儀BH2-III
非防爆溜槽堵塞SYLM-X
非防爆振動器(帶安裝底座SYLZ-JQ-5
非防爆振動器控制箱SYLZ-JK,控制箱自帶1m電纜
防爆振動器(帶安裝底座)SYLZ-JQ-5-B
防爆振動器控制箱SYLZ-JK-B,控制箱自帶1m電纜
覆塑鋼絲繩 φ4
覆塑鋼絲繩用扎頭
覆塑鋼絲繩用繩環
Copyright © 山東卓信機械有限公司 版權所有 魯ICP備12019670號
全國服務電話:0537-2839666 傳真:0537-2228358 百度地圖 打滑開關
公司地址:山東省濟寧高新經濟技術開發區 音叉開關