產地類別 國產
卓信生產系統裝置雙向拉線開關FKLT2-II當膠帶運輸現場發生緊急事故時,拉動系在吊耳上的鋼絲繩,使機內的滑塊與開關作用,發出停機信號,鎖定機構使開關保持輸出狀態,事故處理完畢后需要扳動鎖定機構才可復位。開關采用進口的行程開關,使用使命長。密封性好,具有防塵、防震、防腐等優點機殼采用鑄鋁鑄造,重量輕、硬度強。
【詳細說明】
遼寧卓信生產系統裝置雙向拉線開關FKLT2-II工作原理現貨發
卓信生產系統裝置雙向拉線開關FKLT2-II殼體采用合金鋁鑄造,強度較高;表面采用塑料噴涂,漆膜附著力強;殼體密封性能好,可在惡酷條件下工作;機內結構為旋轉式凹輪機構,可雙向驅動凸輪而啟動開關轉換。當膠帶運輸現場發生緊急事故時,拉動系在吊耳上的鋼絲繩,使機內的滑塊與開關作用,發出停機信號,鎖定機構使開關保持輸出狀態,事故處理完畢后需要扳動鎖定機構才可復位。開關采用進口的行程開關, 拉繩開關一般分為手動復位和自動復位兩種類型,它們都需要達到國家規定的IP等級才算是合格。自動復位是什么意思呢,就是說在進行動作之后可以自動的回到初始的位置,不過這種拉繩開關有可能造成誤差啟動。手動復位又是什么呢,就是在動作之后有一個自鎖裝置可以保持在操作的位置上,需要我們對開關的手動操作復位手柄進行操作才能夠使得其返回到初始的位置。每一種開關都有它自身的優點,我們在選擇的時候就根據自己想要的進行選擇就好了,關鍵是買好的正規廠家生產的產品。,使用使命長。密封性好,具有防塵、防震、防腐等優點機殼采用鑄鋁鑄造,重量輕、硬度強。
上海使用條件
使用環境條件:
1.環境溫度:-40℃~60℃
2.相對濕度不大于85
3.海撥高度不超過2000m
4.開關容量:/220V
5.內置開關數量:2只(2個常開;2個常閉)
6.使用壽命:開關動作10萬次
7.絕緣電壓:AC1000試驗1分鐘
8.防護等級:IP67
9.動作力:3-8公斤(用戶可選)
10.復位方式:雙路手動方式
山東圖片參考
安裝調整
1、拉繩開關應安裝在現場人行過一道一側,每25~30m安裝一臺;
2、將安裝支架焊在膠帶機架上,然后用M10×40螺栓將拉繩開關固定在安裝支架上;
3、拉繩開關之間用鋼絲繩連接,兩端用鋼絲繩扎頭固定;
4、為防止鋼絲繩下垂而誤啟動開關,每3m左右焊一托環;
5、尾各加一調整螺栓,用于固定鋼絲繩;
6、鋼絲繩松緊適宜,拉繩開關用于帶式輸送機發生事故時,能緊急停止輸送機的一種開關,當發生緊急事故或需要檢修而停機時,可于沿線任意位置拉動鋼絲繩,使輸送機停機。拉繩開關防護等級可達IP67,采用進口微動開關, “微動開關”達到100萬次,采用國際領先的國際結構避免了開關動作時傳動軸直接摩擦殼體或軸套,造成間隙增大,造成密封不嚴或卡死的情況,大幅延長拉繩開關使用壽命;傳動軸采不繡鋼材質強度高,表面光滑;殼體表面精工烤漆,不易脫落無異味;操作桿精鑄成型,避免焊接,內置銅質襯套,整體光潔強度高等等。雙向拉繩開關具有壽命長、靈活實用、安全可靠、檢修方便等特點。當維修人員沒有撒離或存在其它異常情況時,只要將雙向拉繩開關開關鎖定停機位置,就不用擔心膠帶機被誤啟動,維修人員的安全就有了保障。雙向拉繩開關表面經特殊處理后可用于酸、碘、鹽區域,鍍鎳表面用于強腐蝕區域。,應保證拉繩開關順利啟動和可靠復位。

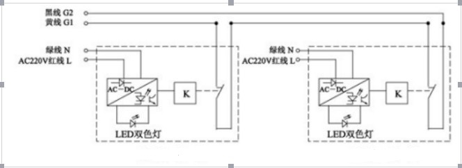
電氣接線示意圖參考

本產品體積小、重量輕、壽命長、全封閉、免維護且性價比高、安裝方便,特別適用于生產環境惡劣的場所。
買家必讀:
收到貨時,無論包裝是否破損,務必當面檢查物品是否完好及缺少,有任何問題,立即與我取得。
本公司承諾:誠信待人,我們是生產,做的是發生意,均以zui低出報價,雙向拉繩開關工作原理:當膠帶運輸機現場緊急事故時,在沿線任意位置牽動系在掛耳上的鋼絲繩,迫使機內凸輪轉動而驅動元件開關動作,發出停機信號,達到停機效果,防止事故的擴大。雙向拉繩開關用途,BLKT-II雙向拉繩開關主要用于常規皮帶輸送機、梭式輸送機、裙邊式給料輸送機、斗式提升機,包裝生產線、堆料/取料系統,起重機、挖掘機、輪船裝卸系統、水平給料機等設備現場緊急事故停車的一種保護裝置。當緊急事故發生時,在現場沿線任意處拉動拉繩開關,均可發出停機信號,實現對人身及設備的保護作用。,沒有暴利。低價位,高品質。1年品質保證。
物流:順豐速運、申通快遞、圓通快遞、中通快遞、天天快運、EMS郵政速運及公鐵聯運。
網上報價不準,發布的產品信息技術參數不詳細、型號對應產品圖片不一定正確、發貨一律以產品型號為準,具體產品請致電咨詢、以中實際報價為準。
卓信是我家,致富靠大家,歡迎訂購卓信傳感器,雙向拉繩開關產品特點堅固的鑄鋁外殼、靜電防腐涂裝適應于惡劣工礦環境安裝防護標準IP65在惡劣環境也可使用使用高性能的微動開關和無需要維護的銅管技術,可生產手動復位型產品拉繩開關的鋼絲繩一端固定在一個固定的拉線螺栓上,另一端固定在 開關臂上,鋼絲繩應每3米用一個有孔螺栓支撐,開關到固定點的距離應 不超過30米,兩開關間的距離不超過60米。當外力促使開關臂桿轉動到報 警位置時,觸動微動開關并鎖定,直到人工復位。適用于室內外安裝。表面特殊處理可用于酸、堿、鹽性區域。鍍鎳表面用于強腐蝕區域。,為感謝新老客戶,量大更!趕快,輕松工作,效率高高!
XT-FE-C2 器
雙向拉線開關 FKLT2-II
跑偏開關 KPT-12-30
速度檢測裝置 LX-S
縱向撕裂檢測裝置 KZL-220
磁開關 TCK-1P 110V-2A
雙穩態開關 KCB-1
拉繩開關LXX-62KM/E1
Copyright © 山東卓信機械有限公司 版權所有 魯ICP備12019670號
全國服務電話:0537-2839666 傳真:0537-2228358 百度地圖 打滑開關
公司地址:山東省濟寧高新經濟技術開發區 音叉開關